Haiku House
Bush House
Broadway Remodel
Rockridge Addition & Cottage
Ringwood ADU
Arnold Condo
Valley Kitchen
The Turn House
Free Time
About
Contact
Menu
Liz Henrikson
Haiku House
Bush House
Broadway Remodel
Rockridge Addition & Cottage
Ringwood ADU
Arnold Condo
Valley Kitchen
The Turn House
Free Time
About
Contact
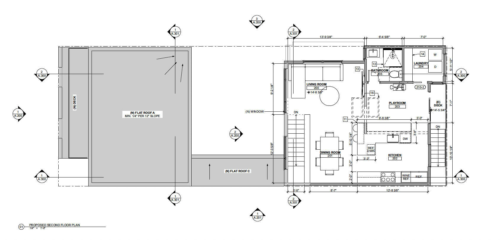
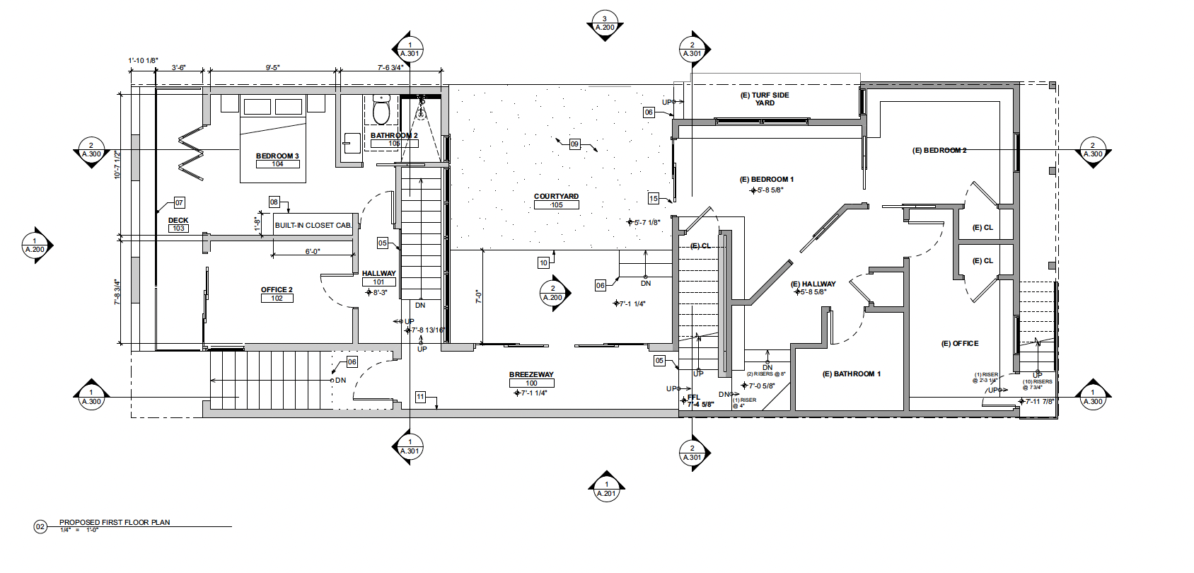
Prospect Ave
San Francisco, CA
Project Manager, Designer (See Architecture)
Ongoing